Skip To Content

4984 Topsail Drive

Nokomis, FL 34275
  • $389,000
  • STATUS: Active
  • ON SITE: 32 Days
  • MLS #: A4677531
UPDATED: 55 min ago
$389,000
  • 0
    BEDS
  • 0.26
    ACRES
  • 0
    BATHS
  • 0
    1/2 BATHS
Neighborhood:
Type:
Vacant Land / Lots
County:

School Ratings & Info

Description

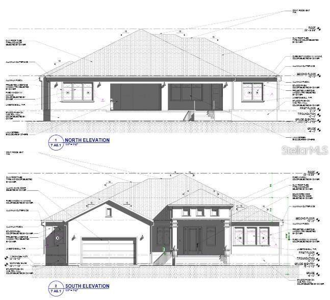
Offered AS-IS, this partially completed residential project presents a rare opportunity to build a custom home in the highly desirable Blackburn Estates community. Construction to date includes completed footers and stem walls filled with soil. The sale conveys active permits, approved building plans, a survey, drainage plan, and the full permit set, along with remaining building materials—most notably a complete package of high-end, impact-resistant hurricane-rated windows and doors. Buyers may choose to continue with the current builder or engage a builder of their choice, with all remaining construction to be completed at the buyer’s expense. Surrounded by multi-million-dollar homes and located just minutes from some of the area’s most beautiful beaches, the property also offers convenient access to the Intracoastal Waterway, ideal for kayaking, fishing, and waterfront recreation. An exceptional opportunity to complete a custom residence in a premier location—projects of this caliber in Blackburn Estates are seldom available.

Monthly Payment Calculator




© 2026 My Florida Regional MLS DBA Stellar MLS. All rights reserved. All listings displayed pursuant to IDX. All listing information is deemed reliable but not guaranteed and should be independently verified through personal inspection by appropriate professionals. Listings displayed on this website may be subject to prior sale or removal from sale; availability of any listing should always be independently verified. Listing information is provided for consumers personal, non-commercial use, solely to identify potential properties for potential purchase; all other use is strictly prohibited and may violate relevant federal and state law. Data last updated 2026-02-10T09:45:40.803.
www.sarasotahomesfinder.com/homes/171955312
Print Image

4984 Topsail Drive Nokomis, FL 34275

  • Price: $389,000
  • Status: Active
  • On Site: 32 Days
  • Updated: 55 min ago
  • MLS #: A4677531
0
Beds
0
Baths
0
½ Baths
0.26
Acres
Neighborhood:
Blackburn Rdg Add
County:
Sarasota
Area:
Nokomis/North Venice
Property Description
Offered AS-IS, this partially completed residential project presents a rare opportunity to build a custom home in the highly desirable Blackburn Estates community. Construction to date includes completed footers and stem walls filled with soil. The sale conveys active permits, approved building plans, a survey, drainage plan, and the full permit set, along with remaining building materials—most notably a complete package of high-end, impact-resistant hurricane-rated windows and doors. Buyers may choose to continue with the current builder or engage a builder of their choice, with all remaining construction to be completed at the buyer’s expense. Surrounded by multi-million-dollar homes and located just minutes from some of the area’s most beautiful beaches, the property also offers convenient access to the Intracoastal Waterway, ideal for kayaking, fishing, and waterfront recreation. An exceptional opportunity to complete a custom residence in a premier location—projects of this caliber in Blackburn Estates are seldom available.
Exterior Features

Lot Size Dimensions 119 x 93 Road Surface Type Asphalt Water Access Intracoastal Waterway Water Access Yn Yes Water Extras Boat Ramp - Private Water Extras Yn Yes Water View Pond Water View Yn Yes Waterfront Feet Total 0 Waterfront Yn No

Interior Features

Sewer Public Sewer Water Source Public

Property Features

Association Fee 775 Association Fee Frequency Quarterly Association Fee Monthly Amount 258.33 Association Fee Requirement Required Association Yn Yes Cdd Yn No Community Features Gated Community - No GuardGolf Carts OKWaterfront Complex Current Use Residential Flood Zone Code AE For Lease Yn No Listing Terms CashConventional Ownership Fee Simple Pets Allowed Yes Realtor Info As-IsDocs AvailableFloor Plan AvailableOwner MotivatedSignSurvey Available Security Features Gated Community Special Listing Conditions None Sw Subdiv Community Name Blackburn Ridge Tax Annual Amount 2849 Total Annual Fees 3100 Total Monthly Fees 258.33 Utilities Electricity AvailablePublicSewer ConnectedSprinkler MeterWater Connected Zoning RSF1


Listing information © 2026 My Florida Regional MLS DBA Stellar MLS..
Listing provided courtesy of COLDWELL BANKER REALTY: 941-366-8070.



© 2026 My Florida Regional MLS DBA Stellar MLS. All rights reserved. All listings displayed pursuant to IDX. All listing information is deemed reliable but not guaranteed and should be independently verified through personal inspection by appropriate professionals. Listings displayed on this website may be subject to prior sale or removal from sale; availability of any listing should always be independently verified. Listing information is provided for consumers personal, non-commercial use, solely to identify potential properties for potential purchase; all other use is strictly prohibited and may violate relevant federal and state law. Data last updated 2026-02-10T09:45:40.803.
 
https://bt-photos.global.ssl.fastly.net/mfr/orig_boomver_2_A4677531-2.jpg https://bt-photos.global.ssl.fastly.net/mfr/orig_boomver_2_A4677531-2.jpg https://bt-photos.global.ssl.fastly.net/mfr/orig_boomver_2_A4677531-2.jpg
Logo
TAI Properties Group | Preferred Shore Real Estate
50 S Lemon Ave., Suite 302
Sarasota FL, 34236